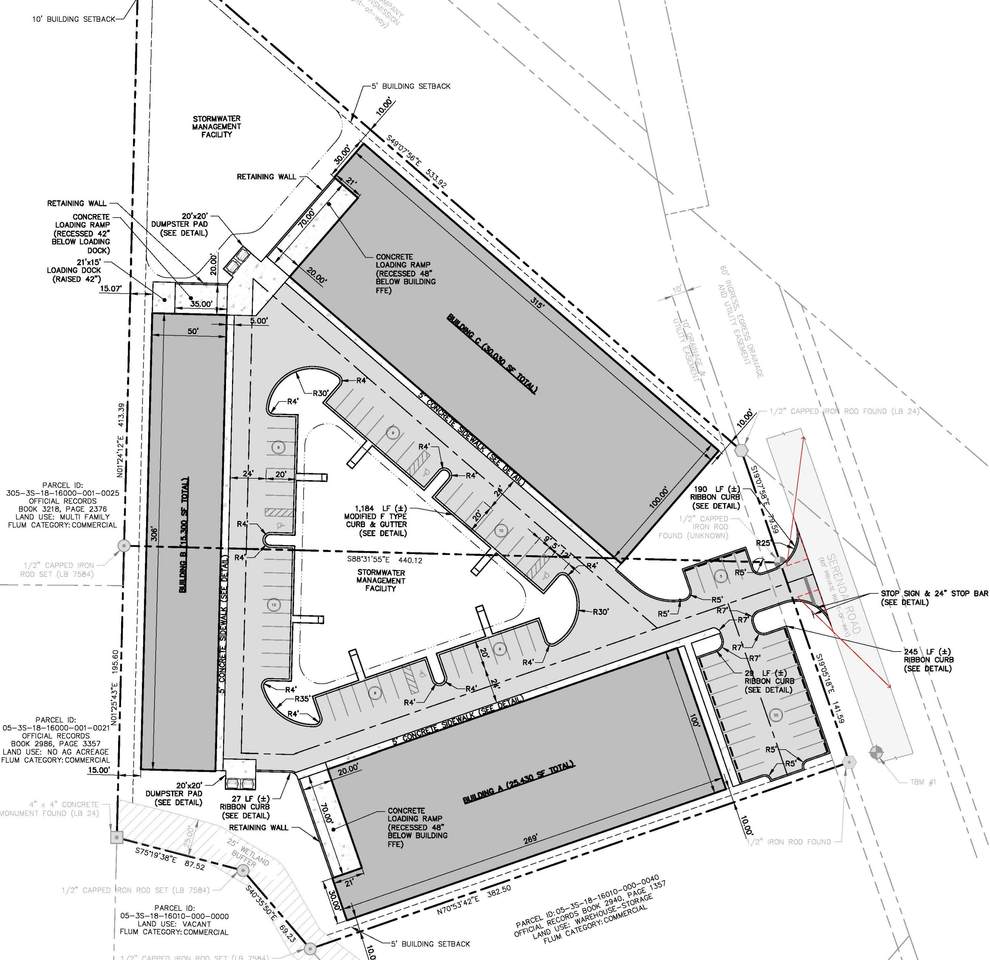
Description
70,460 SF involving (3) freestanding buildings with loading docks under construction in South Walton Commerce Park of the flourishing Santa Rosa Beach, Florida market! The site plan is uploaded to this listing. This subject new development project involves Walton County, Florida parcels: 05-3S-18-16010-000-0050 AND 05-3S-18-16010-000-0060. Occupancy should be achievable by September 2025. Please inquire for further details.
-
0BEDS
-
2.33ACRES
-
0BATHS
-
01/2 BATHS
-
70,460SQFT
-
$1$/SQFT
School Ratings & Info
Description
70,460 SF involving (3) freestanding buildings with loading docks under construction in South Walton Commerce Park of the flourishing Santa Rosa Beach, Florida market! The site plan is uploaded to this listing. This subject new development project involves Walton County, Florida parcels: 05-3S-18-16010-000-0050 AND 05-3S-18-16010-000-0060. Occupancy should be achievable by September 2025. Please inquire for further details.
Related Properties
© 2025 Emerald Coast Association of Realtors MLS. All rights reserved. IDX information is provided exclusively for consumers' personal, non-commercial use and may not be used for any purpose other than to identify prospective properties consumers may be interested in purchasing. Information is deemed reliable but is not guaranteed accurate by the MLS or Coastal Luxury. Vendor Member number: 28178. Data last updated: 2025-12-04T21:00:29.153.
Vendor Member #28178.
